Upišite nekoliko riječi da pronađete sadržaj eg:
fuse,arrestor,00110115 technical...
Nedavne pretrage
Tehnička podrška
This email address is being protected from spambots. You need JavaScript enabled to view it.

Opremljen distributer RFVE1100/54-DC7/7-16-EMT12-C 001107087

Specifikacije

Šifra proizvoda:
001107087
Opis:
RFVE1100/54-DC7/7-16-EMT12-C
Ime razreda:
Opremljen distributer
Broj ulaza:
7
Nazivna struja:
16
Nazivni DC napon:
1100
Dimenzija:
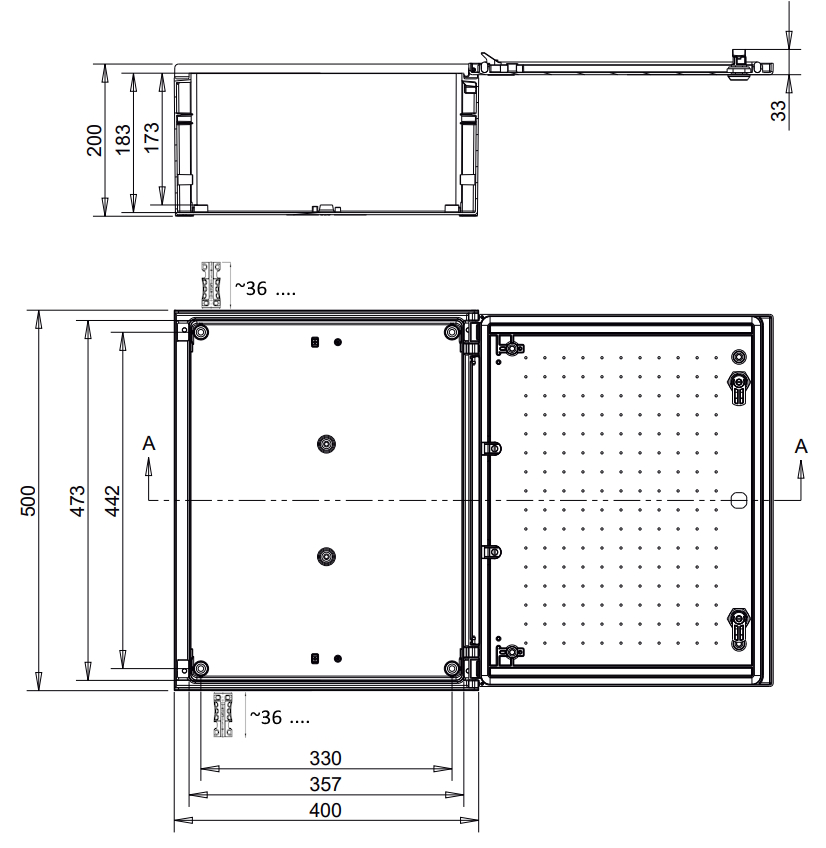
500x400x200

Dokumenti

Proizvod

Eticode težina
13.42  kg
Carinska tarifa
85371098  

Transportno pakovanje

Količina
1  
EAN
3838400115027  
Težina
28  kg
Broj paleta
25  

Slike i dijagrami

Vaša korpa je prazna.